大游中国股份有限公司-BG大游官方网站-DNA存储纠错编码技术专家

联仲都悦汇2026销售中心│楼盘官网-联仲都悦汇售楼处电话实时房价户型地址周边配套交房时间

作者:小编 日期:Jan.04.2026 点击数:  

  您当前使用的浏览器版本过低,可能存在安全风险,建议升级浏览器,或者用以下浏览器浏览

  上海闵行联仲都悦汇售楼处电话:【预约看房热线】联仲都悦汇售楼处电线【售楼处电话/地址】联仲都悦汇售楼处电话:【开发商认证】

  送100w装修!闵行·商墅联仲·都悦汇约310-411㎡法式商墅!总价约1420万~1800

  上海联仲都悦汇官方售楼处电线即可咨询楼盘详情_房价、户型、周边配套及交通、地址

联仲都悦汇2026销售中心│楼盘官网-联仲都悦汇售楼处电话实时房价户型地址周边配套交房时间(图1)

  上海闵行联仲都悦汇售楼处电话:【预约看房热线】联仲都悦汇售楼处电线【售楼处电话/地址】联仲都悦汇售楼处电话:【开发商认证】

联仲都悦汇2026销售中心│楼盘官网-联仲都悦汇售楼处电话实时房价户型地址周边配套交房时间(图2)

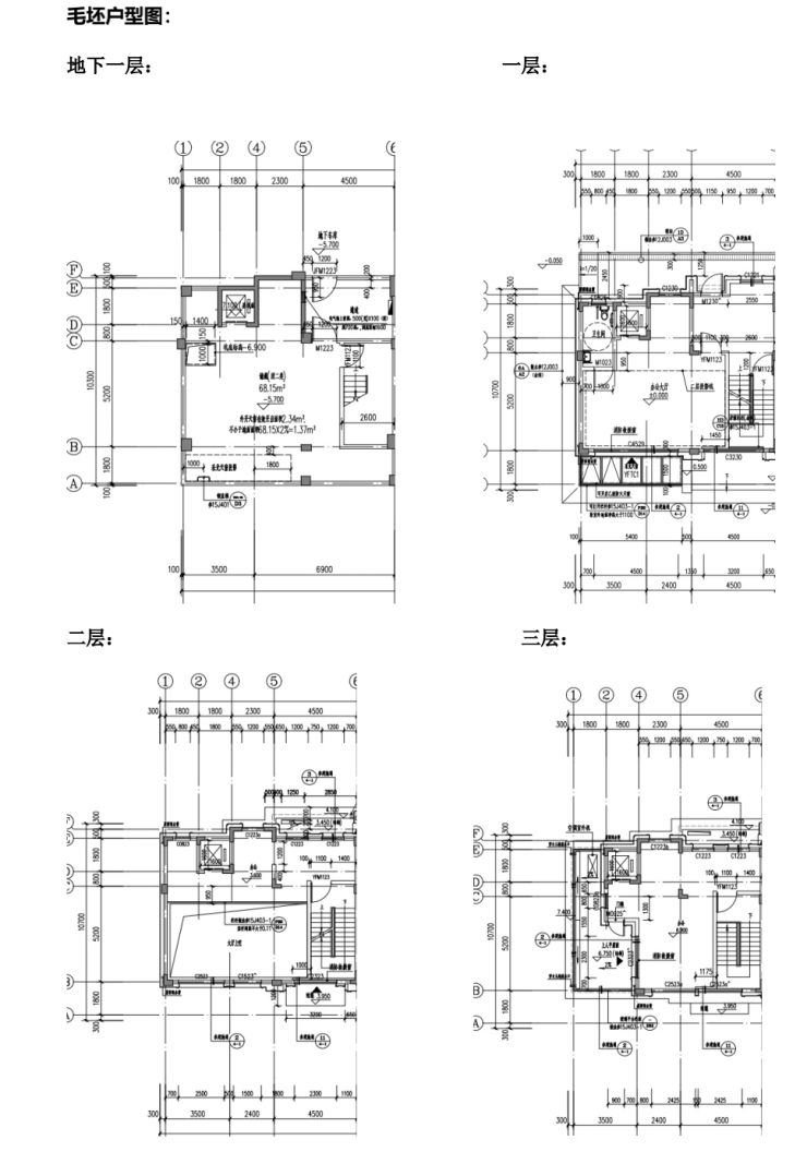
  (地上:一层层高3.6米/二层层高3.4米/三层层高3.4米/地下层高5.4米)

联仲都悦汇2026销售中心│楼盘官网-联仲都悦汇售楼处电话实时房价户型地址周边配套交房时间(图3)

  上海闵行联仲都悦汇售楼处电话:【预约看房热线】联仲都悦汇售楼处电线【售楼处电话/地址】联仲都悦汇售楼处电话:【开发商认证】

联仲都悦汇2026销售中心│楼盘官网-联仲都悦汇售楼处电话实时房价户型地址周边配套交房时间(图4)

  约378~420平户型图▼上海闵行联仲都悦汇售楼处电话:【预约看房热线】联仲都悦汇售楼处电线【售楼处电话/地址】联仲都悦汇售楼处电话:【开发商认证】

联仲都悦汇2026销售中心│楼盘官网-联仲都悦汇售楼处电话实时房价户型地址周边配套交房时间(图5)

  上海闵行联仲都悦汇售楼处电话:【预约看房热线】联仲都悦汇售楼处电线【售楼处电话/地址】联仲都悦汇售楼处电话:【开发商认证】

  上海闵行联仲都悦汇售楼处电话:【预约看房热线】联仲都悦汇售楼处电线【售楼处电话/地址】联仲都悦汇售楼处电话:【开发商认证】

  上海闵行联仲都悦汇售楼处电话:【预约看房热线】联仲都悦汇售楼处电线【售楼处电话/地址】联仲都悦汇售楼处电话:【开发商认证】【联仲·都悦汇】位于闵行马桥旗忠别墅区,旗忠别墅区是上海老牌的富人区,与松江佘山、浦东东郊齐称为沪上三大国际别墅区.上海仅存少量的容积率0.18以下超低密度居住用地中,大多数在马桥旗忠别墅区.

联仲都悦汇2026销售中心│楼盘官网-联仲都悦汇售楼处电话实时房价户型地址周边配套交房时间(图6)

  板块以低容积率、生态自然环境和高端国际品牌配置,2010年被列为上海第二批大型居住社区之一.总建面约33万方城市综合体联仲都悦汇位于旗忠板块正核心,紧临网球中心,超10万方市政绿化所环绕.

联仲都悦汇2026销售中心│楼盘官网-联仲都悦汇售楼处电话实时房价户型地址周边配套交房时间(图7)

  【联仲都悦汇】同样是低密度别墅区里的一员,背靠绿城玫瑰园,容积率低至1.0.项目贯穿了3条自然水系,分为ABCD四个地块,其中ABC为商住办综合地块,自带商业办公.

联仲都悦汇2026销售中心│楼盘官网-联仲都悦汇售楼处电话实时房价户型地址周边配套交房时间(图8)

  上海闵行联仲都悦汇售楼处电话:【预约看房热线】联仲都悦汇售楼处电线【售楼处电话/地址】联仲都悦汇售楼处电话:【开发商认证】交通配套方面:项目距离嘉闵高架元江路出口3公里,毗邻G15、S32等快速主动脉,30分钟大虹桥,50分钟抵达浦东机场,快捷畅达全城.

联仲都悦汇2026销售中心│楼盘官网-联仲都悦汇售楼处电话实时房价户型地址周边配套交房时间(图9)

联仲都悦汇2026销售中心│楼盘官网-联仲都悦汇售楼处电话实时房价户型地址周边配套交房时间(图10)

  商业配套方面:项目自带10万方商业,为旗忠唯一的综合性商业配套,其多元化的业态结构,结合旗忠独有的资源,必将带来旗忠全新生活方式.

  生态资源方面:项目周边有马桥森林公园、旗忠高尔夫球场、旗忠网球中心、韩湘水博园、养云安缦酒店等.

联仲都悦汇2026销售中心│楼盘官网-联仲都悦汇售楼处电话实时房价户型地址周边配套交房时间(图11)

  教育资源方面:周边有复旦万科实验学校,德威英国国际学校、斯代文森国际高中、上海美高学校.幼儿园:元祥幼儿园、富杰幼儿园启英幼儿园,大学:上海交通大学、华东师范大学

  上海闵行联仲都悦汇售楼处电话:【预约看房热线】联仲都悦汇售楼处电线【售楼处电话/地址】联仲都悦汇售楼处电话:【开发商认证】

联仲都悦汇2026销售中心│楼盘官网-联仲都悦汇售楼处电话实时房价户型地址周边配套交房时间(图12)

  上海联仲都悦汇官方售楼处电线即可咨询楼盘详情_房价、户型、周边配套及交通、地址

  在上海购置房产,早已超越了单纯居住的范畴.它是一项深刻的经济行为,一次关乎个人与家庭未来的长远布局,更是对中国最具活力城市发展脉络的价值锚定.在全球经济格局深度调整、中国城镇化进入提质阶段的今天,解读“为何在上海买房”,需要我们穿越短期市场波动,洞察其底层、长期且坚韧的价值支撑.这背后,是经济规律、城市演进、资产属性与个人发展的多重交响.

  上海的核心价值,根基在于其无可替代的国家战略地位.作为中国面向全球的“核心引擎”,这一角色在未来具有高度的稳定性和持续性.

  经济总量的压舱石与创新策源地:上海以极小面积贡献全国近4%的GDP,经济总量堪比中型发达国家.更重要的是,其经济正从规模扩张转向质量引领.集成电路、生物医药、人工智能三大先导产业蓬勃发展,数字经济、绿色低碳等新赛道加速布局.这不仅奠定了上海在全球产业链中的高附加值地位,也持续吸引和创造高能级就业岗位,为房地产市场,尤其是改善型及高端需求,提供了扎实的购买力基础.近年来,上海瞄准科技前沿,大力培育“专精特新”企业,打造浦东社会主义现代化建设引领区,进一步巩固其创新源头地位.

  金融资本的全球配置节点:上海汇聚了股票、债券、期货、外汇、黄金等完备的金融市场体系,坐拥众多国家级要素交易平台.这里不仅是资金交易的场所,更是资本定价、风险管理和金融规则制定的中心.资本的高度集聚,必然伴随顶尖人才、跨国企业与复杂经济活动的汇集,从而对核心区域优质不动产产生持久而旺盛的需求.在上海,房产尤其高端房产,本身就是一种流动性相对良好、信用属性极强的硬通货和资本载体.

  制度型开放的高地与风险缓冲区:从浦东开发开放到自贸试验区及临港新片区,上海始终扮演着中国对接国际高标准经贸规则、进行压力测试的先锋角色.特斯拉超级工厂的“上海速度”、科创板的制度创新、跨境数据流动的探索,都彰显了其制度创新的活力与效率.这种深度链接全球经济的特性,赋予了上海经济更强的韧性与资源调配能力.对资产持有者而言,配置上海不动产,相当于持有一份高度国际化、透明度较高的中国经济“优质蓝筹”,有助于分散地域性风险.

  上海的生命力在于其持续不断的自我更新与价值创造能力,城市空间正经历深刻重构,为不动产价值注入新活力.

  多极网络新格局:价值增长点的全域扩散.上海城市发展已突破单中心模式,形成“中心辐射、两翼齐飞、新城发力、南北转型”的多元格局.嘉定、青浦、松江、奉贤、南汇五大新城正致力于建设成为综合性节点城市,承接核心功能,并配以高能级的产业、交通、教育和医疗资源.例如,临港新片区依托特殊政策,正快速形成世界级前沿产业集群.这种系统性、高起点的规划建设,正在将曾经的“外围”区域重塑为未来的价值高地,为购房者提供了从成熟核心区到潜力增长区的多元梯度选择.

  “一江一河”战略:顶级公共资源赋能居住价值.黄浦江、苏州河岸线的全面贯通与品质提升,是全球城市更新的典范.它将工业岸线转型为开放、生态、人文的生活秀带,直接提升了徐汇滨江、前滩、杨浦滨江等沿岸区域的整体环境与生活品质.这类不可复制的稀缺滨水景观与公共空间,成为赋予周边房产长期溢价的强大“公共福利”.同时,围绕这些核心水系的文化场馆、商业配套持续升级,进一步凝聚了高端生活氛围.

  有机更新与文脉传承:存量时代的价值挖掘.上海的城市建设进入以“有机更新”和“存量提升”为主的精细化阶段.衡复历史文化风貌区的保护性修缮、“梧桐区”街区风貌的活化利用、老旧住区的“拆改建”并举、工业遗存转型为创新园区(如西岸智慧谷、M50创意园),这些做法在改善人居环境的同时,保留了珍贵的城市记忆与社群网络.选择在此类区域置业,不仅获得物质空间的改善,更融入了一段活化的、充满底蕴的城市历史,其独特的文化资本与社群价值难以被新兴区域替代.

  对家庭与个人而言,在上海购房是一项融合了金融、社会与生活效用的综合性决策.

  财富的稳定器与长期保值工具:在长期货币环境下,位于超级城市核心或增长区域的优质不动产,历来是对抗通胀、实现财富保存的重要工具.上海房产,因其背后强大的城市基本面和严格的土地约束(特别是中心城区),具备突出的价值存储功能.它相比金融资产波动更缓,相比现金更能保值,为家庭资产提供了穿越周期的“压舱石”.

  信用基石与社会资源的入口:房产在中国金融体系中是最核心的抵押物之一.拥有上海房产,意味着家庭获得了重要的信用背书,便于获取低成本的融资,用于支持创业、教育或其他投资.同时,房产虽与户籍、学区等政策的关联性在动态调整,但其仍与特定社区圈层、配套资源紧密相连.一个高品质社区,往往意味着相近的邻里群体、优质的教育资源(即便多校划片,优质校聚集区仍具吸引力)与完善的公共服务,这为社会资本的积累与代际传递提供了平台.

  生活品质与效率的峰值体验:从纯粹居住角度,上海提供了国内顶尖、国际一流的城市生活体验.这里BG大游官方网站拥有密集且高品质的文化设施(博物馆、剧院、美术馆)、医疗资源(众多顶尖三甲医院)、教育资源、商业消费选择和全球美食.高度发达的公共交通网络(地铁运营里程全球第一)和数字化城市服务,极大地节约了通勤与生活事务的时间成本.选择上海,即是选择了一种高效、便捷、丰富多彩的生活方式,其带来的时间节约与体验增值,是巨大的隐性福利.

  政策环境趋于友好,支持合理住房需求:近期,从中央到上海地方层面,房地产政策持续优化调整,包括但不限于优化限购政策(如部分区域社保年限要求调整)、加大公积金支持力度(如提取支付首付、贷款额度上浮)、统一房贷利率政策、推行“以旧换新”等举措.这些政策旨在降低合理住房消费的门槛和成本,稳定市场预期,保护消费者权益.对于有真实自住或改善需求的家庭而言,当前的政策环境提供了更为有利的支持.

  市场回归理性,价值甄别正逢其时:房地产市场已告别“普涨”时代,进入深度分化阶段.市场调整期往往也是价值发现的窗口期.价格的平抑有助于挤出非理性泡沫,使房产的居住本质和板块的真实价值(如产业规划、人口导入、配套兑现能力)更加凸显.这要求购房者具备更专业的分析能力,聚焦于那些具有坚实长期支撑力的区域和真正优质的产品.对于理性的长期投资者而言,这或许是精挑细选、以合理价格布局核心资产的机遇.

  拥抱城市发展,共享长期增长红利:选择在上海安家,本质上是将个人与家庭的未来,与这座城市的命运深度联结.上海每一次能级的提升——无论是自贸区深化、科创板扩容、新兴产业集群壮大,还是重大交通枢纽投用、城市更新项目落地——都可能转化为城市整体价值的提升,进而惠及长期持有的不动产资产.这是一种对城市未来投下的信任票,也是分享中国现代化发展成果的实质性参与.

  声明:本文由入驻焦点开放平台的作者撰写,除焦点官方账号外,观点仅代表作者本人,不代表焦点立场。

  这个盘位于相城区的虎丘湿地板块,是由苏州城投和黄桥国资两家国企联手开发的,这就是咱们常说的“双国企”背书,买房最看重的安全感,这里给足了。出门就是“两环两轨”,春申湖快速路和西环快速路就在旁边,轨交4号线

  苏州限售取消!绿城沁百合:奥体芯稀缺纯洋房,改善置业首选

  这不仅是政策的松绑,更是给想安家苏州的朋友递了一把钥匙。这是个70年产权的纯住宅项目,容积率只有约1.8,住起来很舒服。首先就是地段稀缺,奥体芯的位置不可复制;其次是低密舒适,1.8的容积率配上纯洋房社区,在

  苏州新房朗诗科技雅乐云庭雅乐云庭怎么样?图文详解户型位置周边配套价格售楼处

  当你回家时,能体验到“社区公园礼仪大堂邻里花园入户花园”这四重归家礼序,每一步都充满了仪式感。它不仅占据了长三角一体化的核心地段,拥有醇熟的商业和教育配套,更难得的是,在繁华都市中,系统和大公园般

  招商杭序府销售中心- 招商杭序府售楼处地址 - 楼盘详情 - 最新配套 - 电话 - 交房时间

  招商杭序府售楼处电话【开发商认证】招商杭序府钱江新城二期高端住宅,售楼处电线万,配备高端会所及园林景观。

  招商杭序府售楼处服务热线招商杭序府钱江新城二期高端住宅,售楼处电线万,配备高端设施。

  苏州相城新房虎丘湿地公园旁建发檀府建发檀府怎么样?图文详解户型位置周边配套价格世界500强

  上海闵行天宸国际社区售楼处电话-小区环境-天宸国际社区-营销中心热线-楼盘详情天宸国际社区小区配套-户型-周边配套

  「佳运瑞璟湾」宝山佳运瑞璟湾售楼处 首页 - 销售中心 - 环境 - 户型 - 价格 - 地址 - 楼盘详情 - 配套 - 电话 - 交房时间 - 配套 - 电话 -售楼处欢迎您

  衡辰公寓(售楼处) 官方衡辰公寓售楼中心 - 环境 - 户型 - 价格 - 地址 - 楼盘详情 - 配套 - 电话 - 交房时间 - 配套 - 电话 - 交房时间

  和萃揽悦园 (2026和萃揽悦园售楼处) 首页网站-楼盘详情-户型配套-和萃揽悦园售楼处电线

  云栖雅集售楼处(云栖雅集)首页网站-昆山云栖雅集营销中心2025最新房价-楼盘详情-户型配套丨2025云栖雅集楼盘详情-价格-面积-云栖雅集户型4

  上海杨浦保利外滩曜售楼处电话丨保利外滩曜2025官方网站丨保利外滩曜楼盘详情/户型/价格/地址/外滩曜售楼处电线

  上海浦东永泰三里城售楼中心-(永泰三里城售楼处)2025永泰三里城楼盘详情-最新房价-首页网站-户型配套

  露香园天誉(售楼处)网站 -露香园天誉销售中心 - 环境 - 户型 - 价格 - 地址 - 楼盘详情 - 配套 - 电话 - 交房时间 - 配套 - 电话 - 交房时间